Inicio
Nosotros
Servicios
Obras
Novedades
Contacto
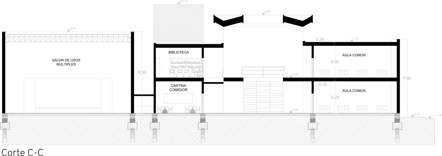
Ferra Constructora | Obras | Instituto Ricardo Palma
Planos Instituto Ricardo Palma
Volver a Ficha Técnica
Desarrollado por